Let Nationwide Ladder & Equipment Help You Find What You Need.

Mason Style Scaffolding Frames

Whether you need to use frames for maintenance or general applications, we’ve got you covered with our durable selection.

(30″) narrow frames are particularly suited to indoor/outdoor maintenance staging. When used together with a wide range of accessories, these 30″ narrow frames make a rolling tower.

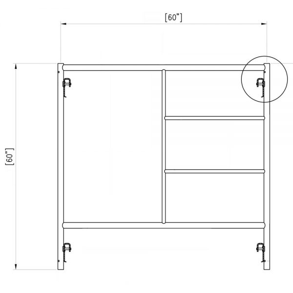
The 5-foot wide frames are ideally suited for maintenance and general applications. They are available in various heights plus a 6′ – 4′ Walk-thru model. They are recom-mended where the maximum load capacity does not exceed 50 lbs. per square foot uniformly distributed over a 5′ X 7′ area. All Mason Frames are 1.69” Outside diameter tubing.

TOP
Nation Wide Ladder

Nation Wide Ladder