Let Nationwide Ladder & Equipment Help You Find What You Need.

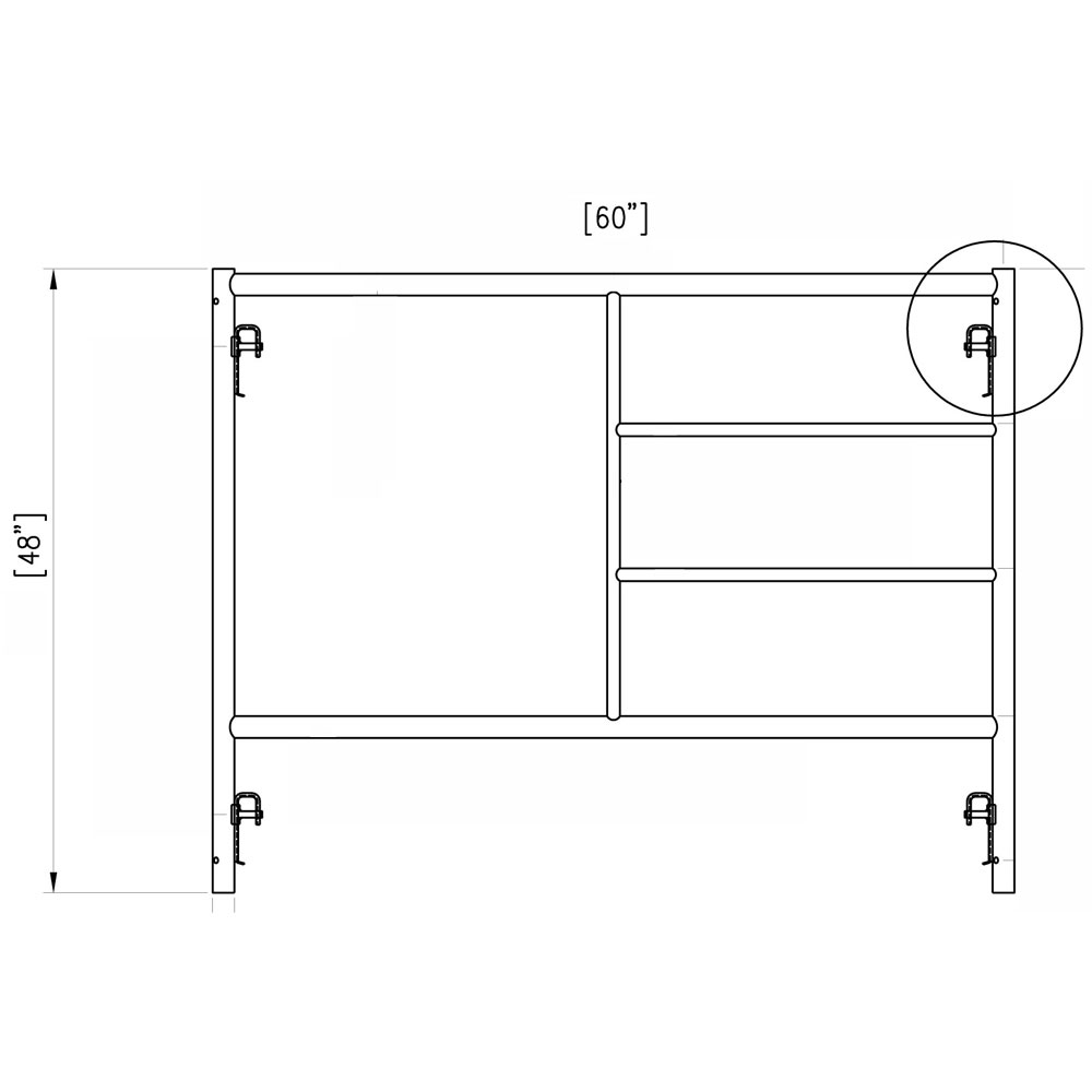
NWF5x4 – 60”W x 48”H Standard Vanguard® Style Scaffolding Frame

Stud center pin spacing 36”

Description

Tube Outside diameter: 1.69″
Tube Inside diameter: 1-1/2″
Steel Wall thickness: .095″
Finish: Blue Powder Coat

TOP
Nation Wide Ladder

Nation Wide Ladder